关于我们

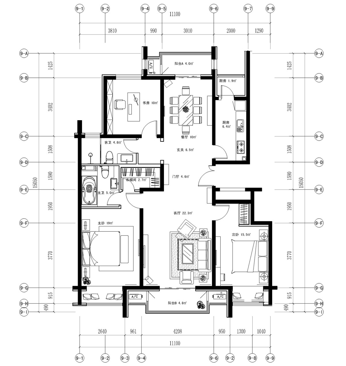
迁西住宅样板间

发布日期:2025-10-13

2 (2)

图片63

图片65

图片67

图片66

图片69

图片71

图片70

分享到: