关于我们

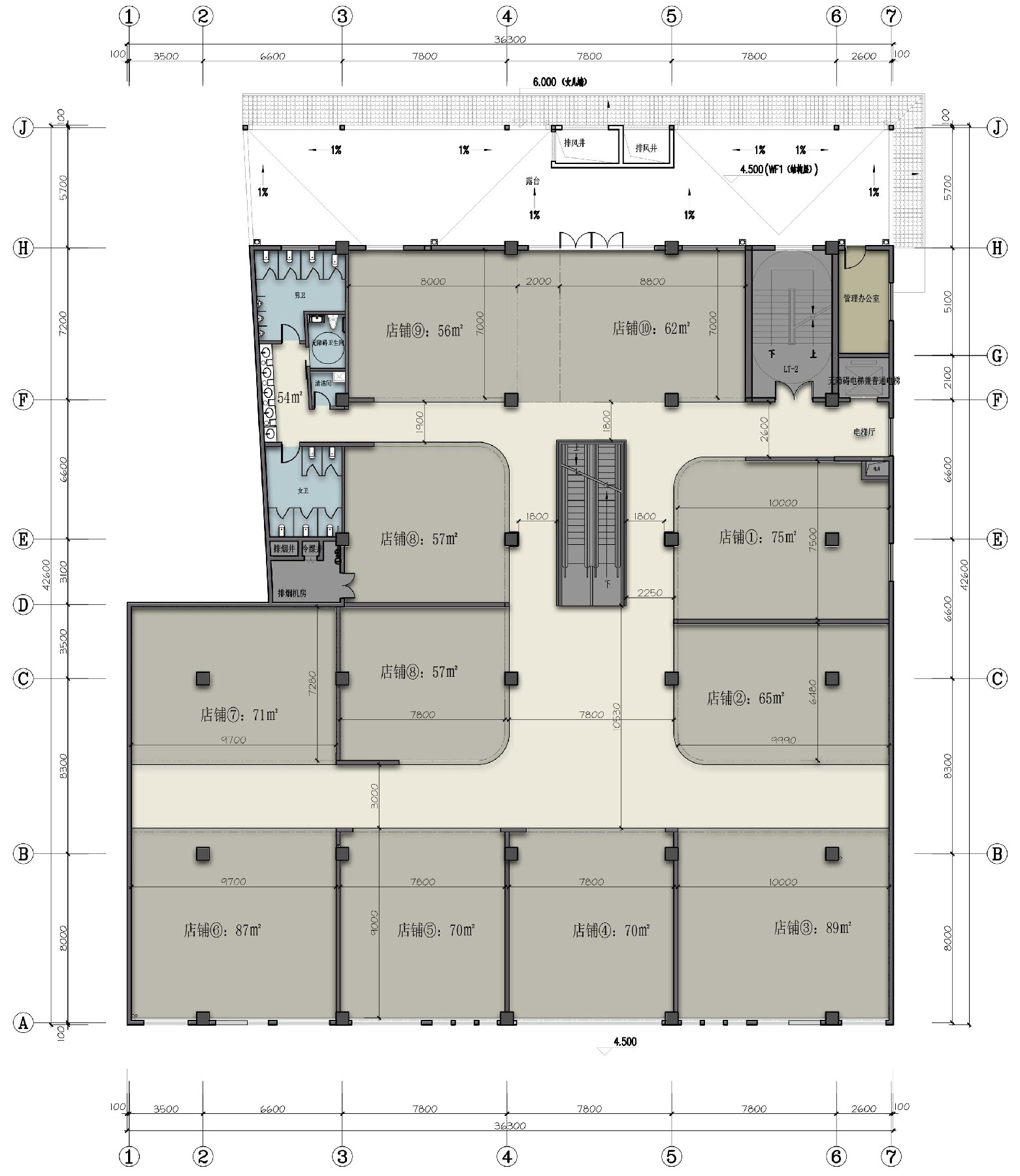
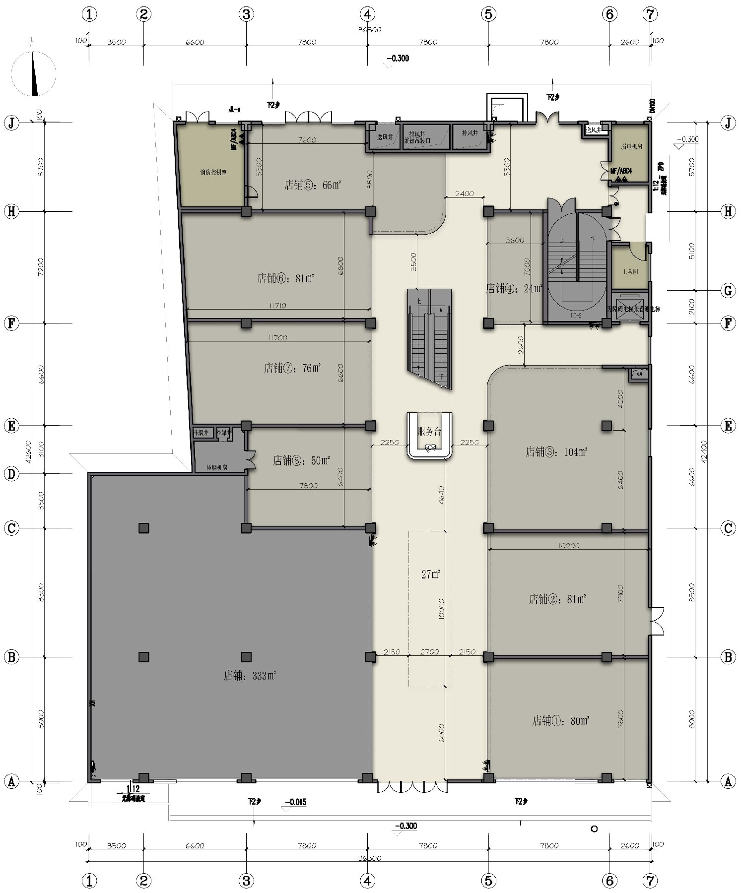
乾县伟志百货商业项目

发布日期:2025-11-03

图片 3


图片 1


图片 2



图片 3

图片 4

图片 5

图片 6

图片 7

图片 8

图片 9


分享到: